PEKNÝ - 4 IZBOVÝ BYT - MIRKA NEŠPORA - PREŠOV
P R E D A N É
P R E D A N É
Na predaj Vám ponúkam 4-izbový byt s plastovými oknami na Sídlisku III. na ulici Mirka NEŠPORA č. 6 o výmere 89 m2 + pivnica a lodžia, kolaudovaný v roku 1978. Byt je v osobnom vlastníctve. Byt sa nachádza na 2.poschodí z 7. poschodového zatepleného bytového domu (energetický certifikát vydaný, triedy B), ktorý bol komplet zateplený v roku 2010. Byt je s veľkou lodžiou a je orientovaný na západ a východ do parku. V bytovom dome je nový výťah.
Prostredníctvom 3D scanu - vizualizácie, uvedenej nižšie v prezentácii sa môžete poprechádzať ihneď po byte.
Popis bytu:
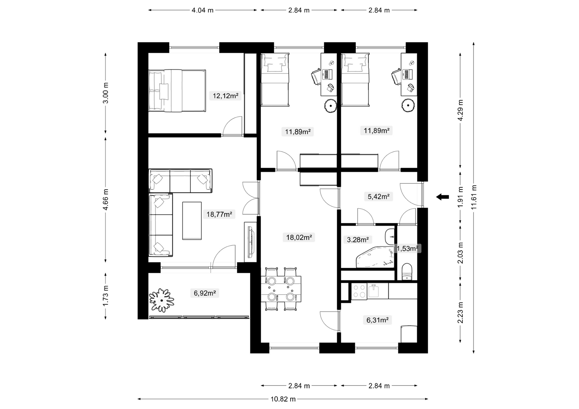
Byt pozostáva zo vstupnej chodby (1,91 m x 2,84 m = 5,42 m2) , kúpeľne (2,08 m x 1,58 m = 3,28 m2) , samostatnej toalety (2,04 m x 0,75 m = 1,53 m2) , jedálne (6,37 m x 2,83 m = 18,02 m2), kuchyne (2,83 m x 2,23 m = 6,31 m2) , obývacej izby s výstupom na lodžiu (4,03 m x 4,66 m = 18,78 m2) , spálne (4,04 m x 3,00 m = 12,12 m2) , detskej izby (2,84 m x 4,19 m = 11,90 m2) a pracovne / hosťovskej izby (2,84 m x 4,19 m = 11,90 m2). Lodžia (1,73 m x 4,00 m = 6,92 m2). Pivnica (1,45 m x 1,43 m = 2,07 m2). Nižšie v prezentácii sú uvedené pôdorysy bytu. Čo sa týka energii, mesačné náklady na 1 osobu sú: Správca bytu BYTOVÉ DRUŽSTVO PREŠOV, Bajkalská 30, 080 01, Prešov vo výške 265,- € (+ 22,- € elektrina, 4,- € plyn). Ročná daň za nehnuteľnosť 71,71,- €.
Spolu 89,26 + pivnica 2,07 m2 + lodžia 6,92 m2
Podlahy v byte sú z PVC, okná plastové, jadro – murované.
V okolí, o ktorom sa chcem s vami podeliť, nájdete vysokú občiansku vybavenosť, ktorá zabezpečuje všetko, čo potrebujete na každodenný život, príjemne prostredie plné zelene a miesta na oddych. Obchody, reštaurácie, školy, škôlky, čo vám ušetrí čas a zjednoduší každodenné povinnosti.
Občianska vybavenosť v okolí bytu: potraviny BILA – 600 m, LIDL – 1,7 km, COOP Jednota 250 m, KAUFLAND – 2,2 km, TESCO – 1 km, Trhovisko - 700 m, Materská škola Antona Prídavka – 550 m, Materská škola Mirka Nešpora – 200 m, Letné kúpalisko Sun Park – 700 m..
Byt je vo vlastníctve troch vlastníkov bez tiarch.
Byt je predajom ihneď voľný.
Táto nehnuteľnosť nie je len miestom na bývanie, ale aj priestorom, kde sa rodiny môžu zblížiť a vytvárať nezabudnuteľné spomienky. Vychutnajte si každodenné radosti v prostredí, ktoré je plné zelene a pozitívnej energie, a objavte nový spôsob života, ktorý vás naplní radosťou a spokojnosťou.
Okolie nehnuteľnosti je prispôsobené pre behanie a cyklistiku, pričom široké a bezpečné chodníky lákajú na dlhé prechádzky a športové aktivity v lesoparku Bikoš a cyklochodníku Veľký Šariš. Relaxačná zóna plná zelene je skutočným rajom pre tých, ktorí hľadajú únik od každodenného zhonu a chcú si užívať pokoj a harmóniu prírody. Deti sa tu môžu bezstarostne hrať a objavovať krásy prírody, zatiaľ čo rodičia si môžu vychutnávať chvíle oddychu na slnečných lúkach.
Ak hľadáte novú nehnuteľnosť, či už na bývanie alebo investíciu, ste na správnom mieste. V tejto dobe je dôležité mať po ruke odborníka, ktorý vám pomôže orientovať sa v ponuke a vybrať si to najlepšie. Ako realitný maklér vám ponúkam profesionálne služby a osobný prístup. Neváhajte a dohodnite si so mnou obhliadku, alebo si vyžiadajte ďalšie informácie.
Takúto prezentáciu môžete mať aj Vy, ak uvažujete o predaji Vašej nehnuteľnosti.
Viac na www.stefancarnoky.sk
Osobná web stránka nehnuteľnosti: https://stefancarnoky.sk/mirka-nespora-presov



175 000,- €
PREDANÉ V AUKCII
192 500,- €
(v prípade viacerých záujemcov o túto ponuku, si majiteľ vyhradzuje právo zvoliť najvýhodnejšiu ponuku)
Volám sa Štefan Čarnoký a som realitným maklérom so 17-ročnou praxou v oblasti nehnuteľností. Moja vášeň pre túto profesiu sa začala už v mladosti, keď som si uvedomil, aký význam má domov pre každého z nás. Pomáham klientom nájsť ich vysnívané miesto, kde môžu budovať svoje životy a spomienky.
V priebehu rokov som sa naučil, že úspech v realitách nie je len o predaji nehnuteľností, ale predovšetkým o budovaní dôvery a vzťahov. Každý klient je pre mňa jedinečný a zaslúži si osobný prístup. Snažím sa porozumieť ich potrebám a prianiam, aby som im mohol poskytnúť najlepšie možné riešenia.
Moja práca ma napĺňa a motivuje, a preto sa neustále vzdelávam a sledujem trendy na trhu. Verím, že kombinácia skúseností, odbornosti a osobného prístupu je kľúčom k úspechu. Teším sa na každú novú výzvu a príležitosť pomôcť ľuďom nájsť ich ideálne miesto na zemi.