Používame cookies na optimalizáciu našich webových stránok a našich služieb. Ďalšie informácie o cookies nájdete tu.

Nastavenie


DOMY NAD GRUNTOM

DOMY NAD GRUNTOM

 

 

PRIPRAVUJEME

 

3 POZEMKY NA PREDAJ

Popis nehnuteľnosti

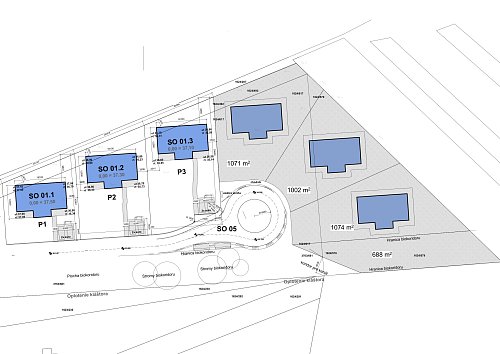
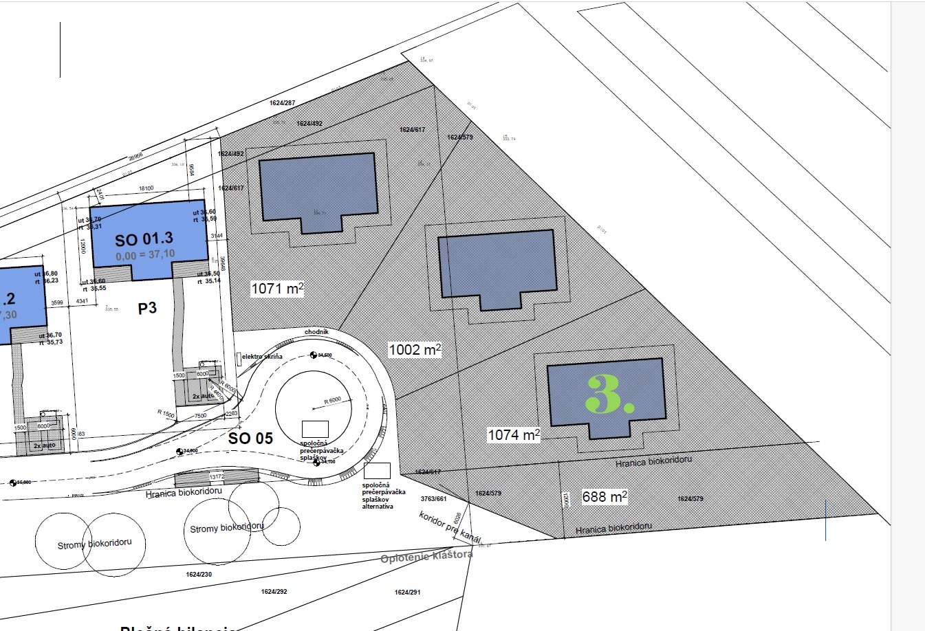
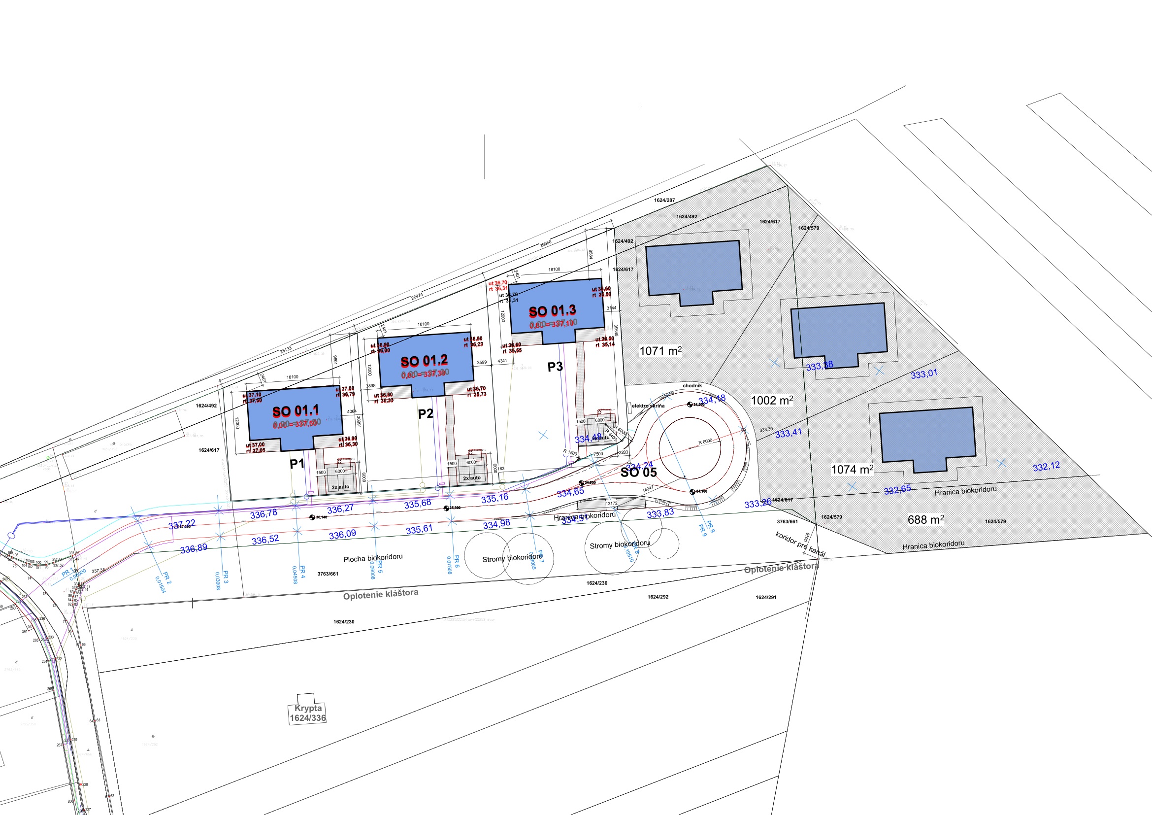
Na predaj sú posledné tri pozemky určené pre výstavbu rodinných domov, ktoré ponúkajú jedinečnú príležitosť pre tých, ktorí hľadajú ideálne miesto na bývanie. Tieto pozemky sú situované v tichej a príjemnej lokalite, ktorá je obklopená prírodou a zároveň poskytuje všetky potrebné služby v blízkom okolí.

Každý z pozemkov je navrhnutý tak, aby umožnil pohodlnú a efektívnu výstavbu rodinného domu. Súčasťou predaja je aj projekt na výstavbu jednostranného chodníka a prístupovej cesty, ktorá bude ukončená obratiskom, čo zabezpečí bezproblémový prístup k jednotlivým pozemkom. Týmto spôsobom sa zvyšuje komfort a bezpečnosť pre budúcich obyvateľov.

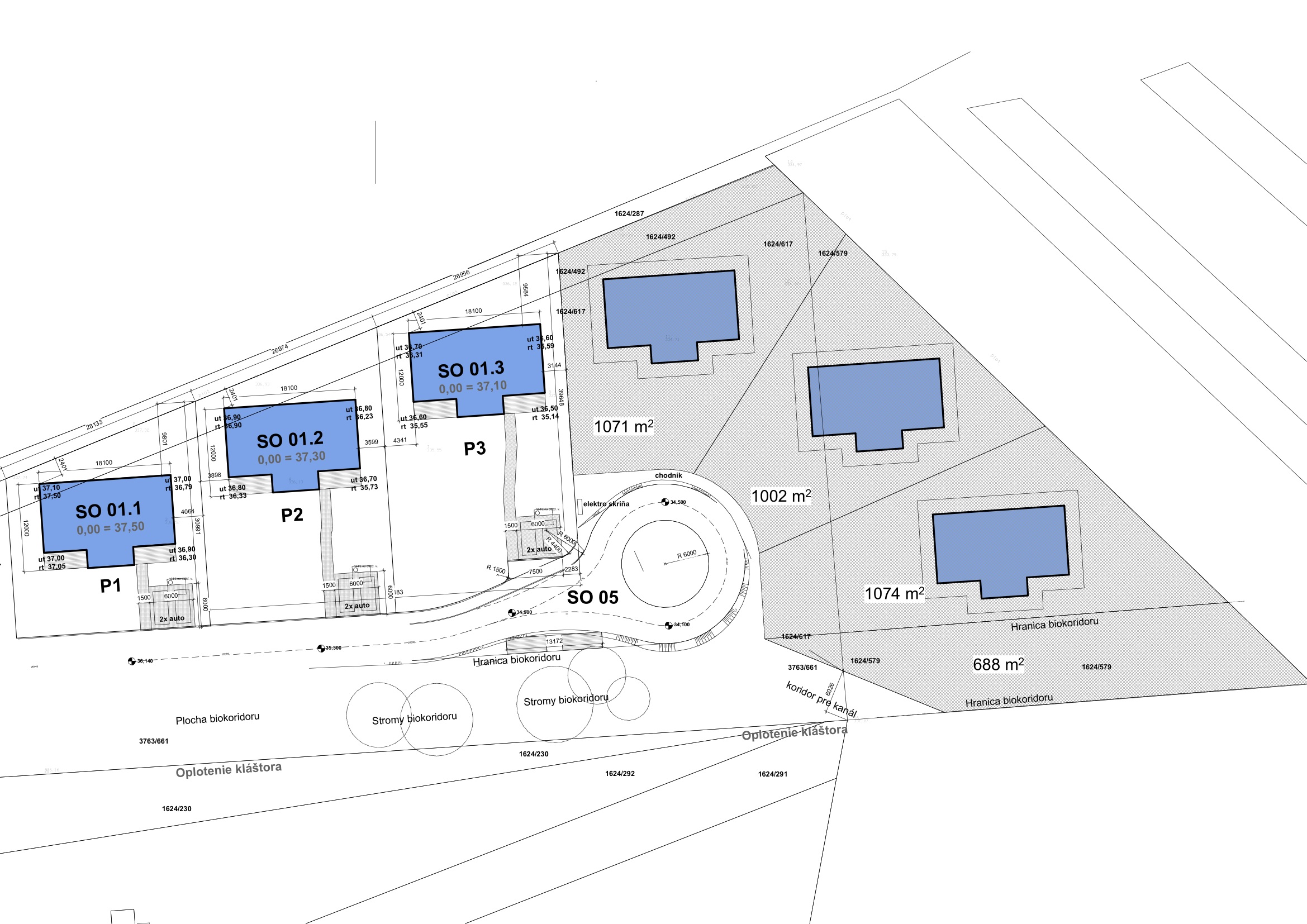
Tento projekt, ktorý je už schválený a má právoplatné rozhodnutie o umiestnení stavby, ponúka moderné rodinné domy na pozemkoch s parcelnými číslami 1624/617, 3763/661, 3763/662, 3763/653, 3763/656, 1624/492, 1624/656 a 3763/357 v katastrálnom území Grunt.

V rámci tohto projektu sú naplánované tri rodinné domy, označené ako A1, A2 a A3, ktoré sú navrhnuté tak, aby spĺňali všetky moderné štandardy bývania. Každý dom je navrhnutý s dôrazom na funkčnosť a estetiku, pričom ich umiestnenie poskytuje dostatok súkromia a pohodlia pre budúcich majiteľov.

Okrem rodinných domov projekt zahŕňa aj inžinierske siete, vrátane elektrických NN rozvodov, vodovodu a kanalizácie, čím je zabezpečená kompletná infraštruktúra pre bezproblémové bývanie. Komunikácie a spevnené plochy sú navrhnuté tak, aby zabezpečili pohodlný prístup a kvalitné bývanie v tejto rozvíjajúcej sa lokalite.

Na pozemkoch budú taktiež umiestnené rozvody vodovodu, kanalizácie a elektrickej energie, čo uľahčí napojenie rodinných domov na všetky potrebné inžinierske siete. Toto zabezpečuje, že noví majitelia budú môcť okamžite začať s výstavbou svojich vysnívaných domov bez zbytočných komplikácií.

Nezmeškajte túto jedinečnú príležitosť a investujte do svojho budúceho domova na jednom z týchto atraktívnych pozemkov. Kontaktujte nás ešte dnes a dohodnite si obhliadku, aby ste si mohli osobne prezrieť túto výnimočnú lokalitu a predstaviť si svoj nový život v rodinnom dome, ktorý si sami navrhnete.

V prípade záujmu nás neváhajte kontaktovať prostredníctvom nášho kontaktného formulára. Tešíme sa na vašu správu a radi vám poskytneme ďalšie informácie.

foto_pohlad_google_map_-_orez_2

 

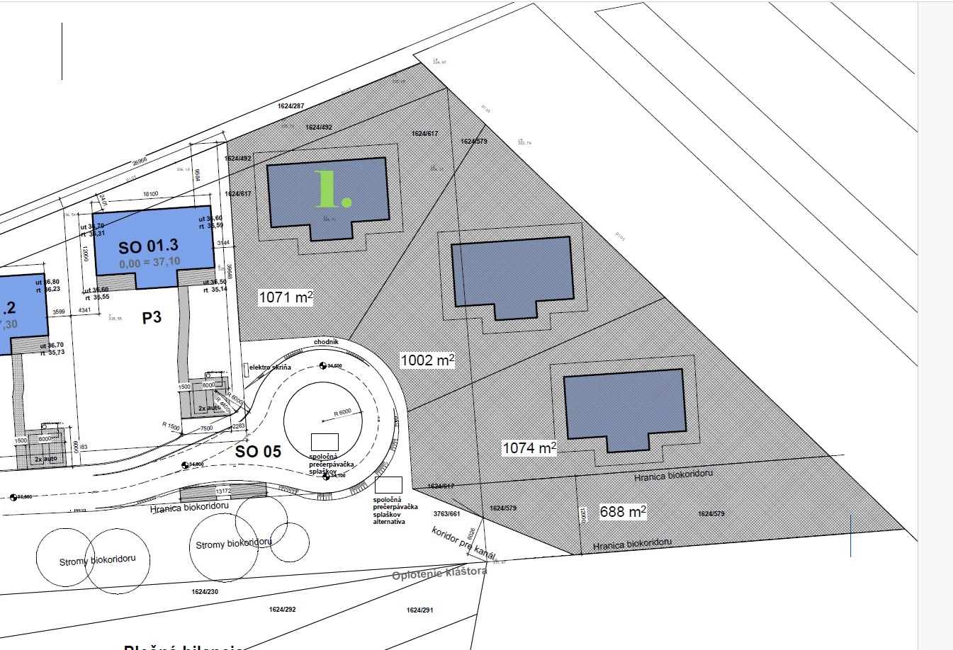
POZEMOK č. 1

 

Výmera 1 071 m2

3_pozemky_ocislovane_1

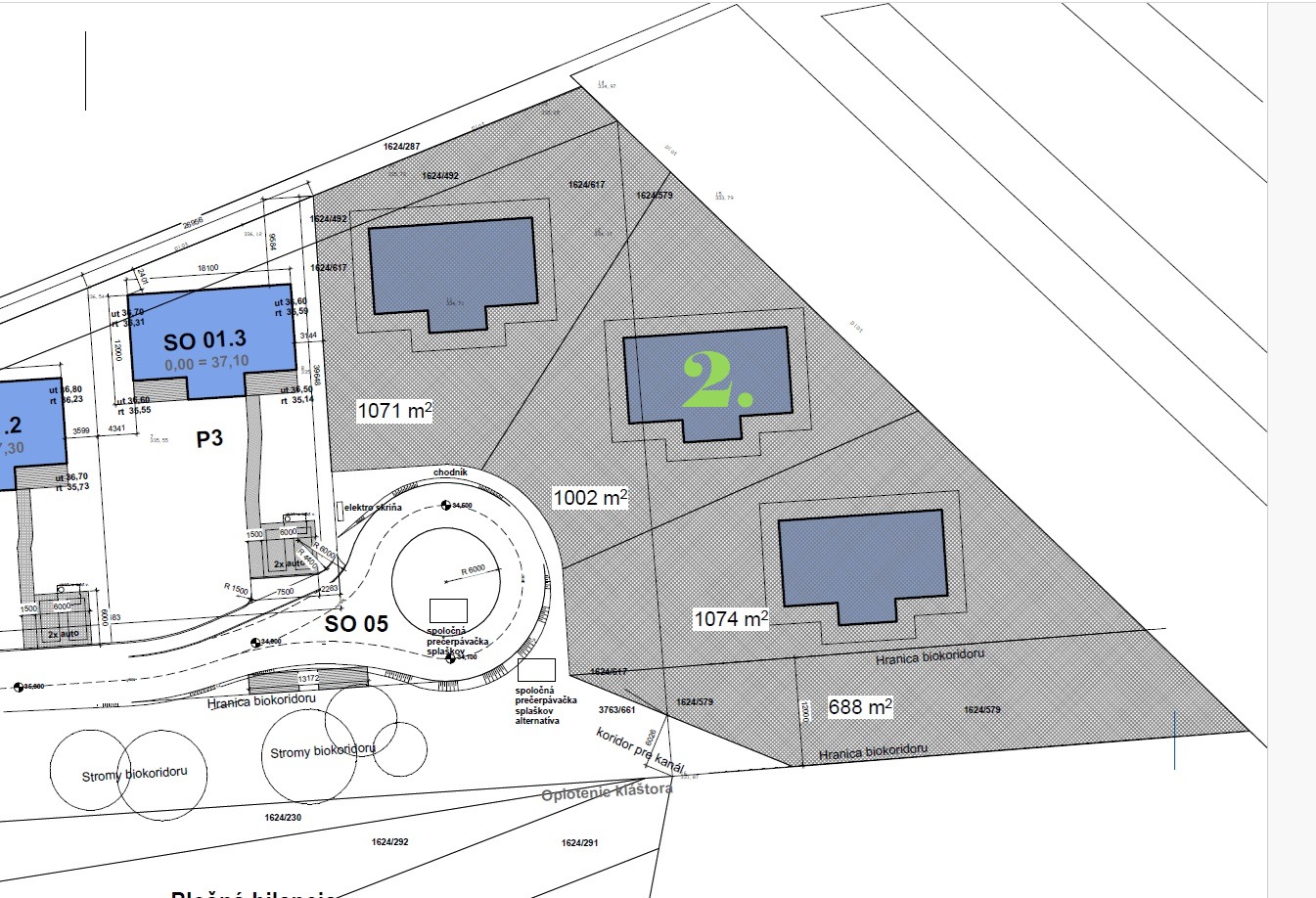
POZEMOK č. 2

 

Výmera 1 002 m2

3_pozemky_ocislovane_2

POZEMOK č. 3

 

Výmera 1 074 m2

3_pozemky_ocislovane_3

Štefan Čarnoký

 

Volám sa Štefan Čarnoký a som realitným maklérom so 17-ročnou praxou v oblasti nehnuteľností. Moja vášeň pre túto profesiu sa začala už v mladosti, keď som si uvedomil, aký význam má domov pre každého z nás. Pomáham klientom nájsť ich vysnívané miesto, kde môžu budovať svoje životy a spomienky.

V priebehu rokov som sa naučil, že úspech v realitách nie je len o predaji nehnuteľností, ale predovšetkým o budovaní dôvery a vzťahov. Každý klient je pre mňa jedinečný a zaslúži si osobný prístup. Snažím sa porozumieť ich potrebám a prianiam, aby som im mohol poskytnúť najlepšie možné riešenia.

Moja práca ma napĺňa a motivuje, a preto sa neustále vzdelávam a sledujem trendy na trhu. Verím, že kombinácia skúseností, odbornosti a osobného prístupu je kľúčom k úspechu. Teším sa na každú novú výzvu a príležitosť pomôcť ľuďom nájsť ich ideálne miesto na zemi.

 

 


Štefan Čarnoký

Kontaktný formulár

Stiahnuť PDF